FAENZA – Appartamento su due livelli in palazzo storico ristrutturato con 2 camere e locali sottotetto

Faenza | 330.000,00 | Mq 123 | 4 | 3 | 2

Descrizione

FAENZA – Appartamento su due livelli in palazzo storico ristrutturato con 2 camere e locali sottotetto

💶 Prezzo: € 330.000

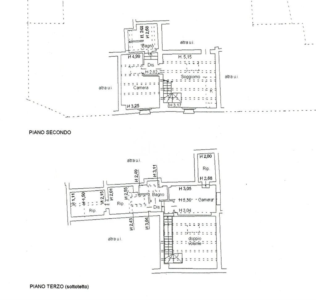
All’interno di un prestigioso palazzo storico completamente ristrutturato con risanamento conservativo, proponiamo in vendita elegante appartamento disposto su due livelli, al secondo piano servito da ascensore, rifinito con materiali di pregio e completo di aria condizionata già installata.

Composizione interna:
Primo livello: luminoso soggiorno con cucina a vista, una camera matrimoniale, un bagno moderno arredato con doccia;
Secondo livello: seconda camera doppia con annessa cabina armadio, secondo bagno completo di arredi e doccia, più due locali sottotetto ideali come studio o camera per ospiti.

Finiture e dotazioni:
pavimenti in listoni di legno pregiato in tutti gli ambienti;
infissi in legno con vetrocamera;
aria condizionata installata in ogni ambiente;
impianti nuovi e certificati;
classe energetica C.

🚗 Possibilità di acquisto posto auto privato nella corte interna.

📍 Soluzione esclusiva, ideale per chi cerca spazi versatili e finiture di alto livello in un contesto storico di prestigio, a due passi dal centro città.

Dettagli

  • Riferimento: 594
  • Tipologia: Appartamento
  • Comune: Faenza
  • Zona: Centro Storico
  • Cucina: Cucina a vista
  • Camere: 3
  • Bagni: 2
  • Box:
  • Piano: 2° di 2
  • Anno costruzione: 2024
  • Stato conservazione: Nuovo
  • Stato: Nuovo
  • Spese cond. annue €:
  • Riscaldamento: Autonomo
  • Caratteristiche

    Ascensore, Giardino condominiale, Condizionatore, Predisposizione allarme

    Efficienza energetica

    Classe C Ipe 70 KWh/m²a

    Prestazione energetica del fabbricato inverno estate

    VIA NAVIGLIO 3 Faenza

    Richiedi informazioni

    0546 665664
    3773827470

    Ai sensi e per gli effetti degli articoli 13 e 6 del Regolamento UE 2016/679, dichiaro di aver preso visione dell’informativa di Studio CAMP Sncdi Claudia Minardi e Alessandro Pietropaolo per il trattamento dei dati personali.

    Agenzia Immobiliare Minardi

    Via Naviglio, 49/A - 48018 Faenza (RA) - Tel 0546 665664


    FAENZA – Appartamento su due livelli in palazzo storico ristrutturato con 2 camere e locali sottotetto

    330.000,00 | Mq 123 | 4 | 3 | 2

    VIA NAVIGLIO 3 Faenza

    FAENZA – Appartamento su due livelli in palazzo storico ristrutturato con 2 camere e locali sottotetto

    💶 Prezzo: € 330.000

    All’interno di un prestigioso palazzo storico completamente ristrutturato con risanamento conservativo, proponiamo in vendita elegante appartamento disposto su due livelli, al secondo piano servito da ascensore, rifinito con materiali di pregio e completo di aria condizionata già installata.

    Composizione interna:
    Primo livello: luminoso soggiorno con cucina a vista, una camera matrimoniale, un bagno moderno arredato con doccia;
    Secondo livello: seconda camera doppia con annessa cabina armadio, secondo bagno completo di arredi e doccia, più due locali sottotetto ideali come studio o camera per ospiti.

    Finiture e dotazioni:
    pavimenti in listoni di legno pregiato in tutti gli ambienti;
    infissi in legno con vetrocamera;
    aria condizionata installata in ogni ambiente;
    impianti nuovi e certificati;
    classe energetica C.

    🚗 Possibilità di acquisto posto auto privato nella corte interna.

    📍 Soluzione esclusiva, ideale per chi cerca spazi versatili e finiture di alto livello in un contesto storico di prestigio, a due passi dal centro città.

    Riferimento: 594

    Tipologia: Appartamento

    Comune: Faenza

    Zona: Centro Storico

    Cucina: Cucina a vista

    Camere: 3

    Bagni: 2

    Box:

    Piano: 2° di 2

    Anno costruzione: 2024

    Stato conservazione: Nuovo

    Stato: Nuovo

    Spese cond. annue €:

    Riscaldamento: Autonomo

    Ascensore, Giardino condominiale, Condizionatore, Predisposizione allarme

    Efficienza energetica
    Classe C Ipe 70 KWh/m²a
    Prestazione energetica del fabbricato inverno estate